上海人民电器厂RMV1系列真空断路器是户内高压开关设备。
该产品适用于额定电压12kV,频率为50Hz、额定电流5000A及以下的户内高压真空断路器
(以下简称断路器),用于投切各种不同性质的负荷及频繁操作的场合,可供工矿、企
业、发电厂及变电站电气设施的保护和控制之用。该产品还适于重合闸操作并有极高的操
作KK性与使用寿命。
该产品可在工作电流范围内进行频繁的操作或多次开断短路电流;机械寿命可高达20,000
次,满容量短路电流开断次数可达50次。
它在开关柜内的安装形式既可以是固定式,也可以是手车式。
概 述
基本短路电流开断次数达274次。
在预期的短路电流开断次数期间,不需维修(E2级)。
在容性电流开断过程中具有非常低的重击穿概率(C2级)。
可进行免维护频繁操作,机械寿命不低于20,000次(25/31.5kA ,M2级)。
在BZ脱扣的前提下,间接式过流脱扣线圈阻抗为2.5Ω(动铁芯在初始非吸合位
置),与去分流式过流保护线路相匹配。
RMV1真空断路器使用了模块化机械操动机构,拆装方便,便于维护,特性参数稳定。
产品特点
环境温度:Z高温度+40˚C;Z低温度-15˚C。
相对湿度:Z大日平均相对湿度95%;Z大月平均相对湿度90%。
海拔高度:Z高1000m。
周围空气没有明显地受到尘埃、烟雾、腐蚀性和可燃性气体、蒸汽和盐雾的污染。
正常使用条件
RM V 1 - 12 / □ - □ G □
型号及含义
相距代号
固封极柱式
额定短路开断电流 kA
额定电流 A
上海人民电器厂
真空断路器
设计序号
额定电压 kV
注:1) G表示固封极柱式;当缺省时为非固封极柱式。
2) 相距代号缺省时为150mm相距;M表示210mm相距;L表示275mm相距;H表示侧装机构。
3) RMV1为该系列断路器企业代号,同时还有西高所行业型号相对应,其中非固封式对应
型号ZN73A,固封式对应型号ZN73D,侧装非固封式对应型号ZN73M,侧装固封式对应型号
ZN73N。
RMV1-3
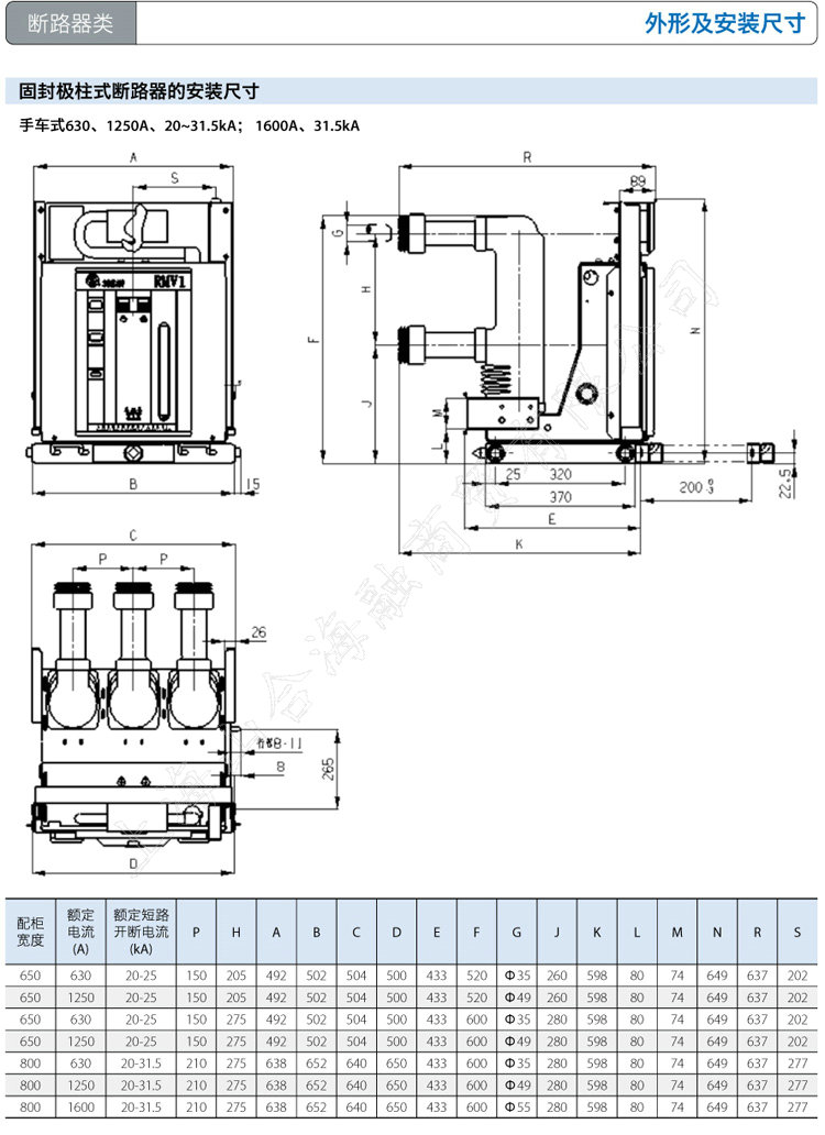
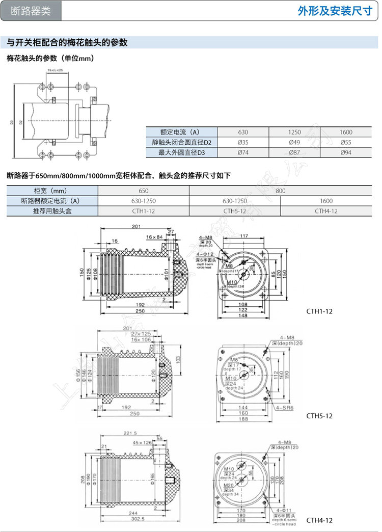
断路器类
RMM1 RMW1 RMW2 RMM1L RMM2/RMM2L RMM3 RMC1 RMC2 RMV1 RMVS1
RMV1简介
断路器为整体式结构,其灭弧室部分与操动机构连成一体。
断路器主体部分导电回路设置在用绝缘材料制成的绝缘筒内,或采用
一体式的固封极柱,保护真空灭弧室免受外界环境和机械的损害。
成熟的弹簧操动机构性能稳定、操作KK。
具有KK的连锁装置,可以有效地防止各种误操作。
采用手动操作或电动操作。
安装方式可选择固定式或手车式。
结构性能特点
操动机构储能电机的技术数据
额定电压V 消耗功率W 储能时间s
DC110 或 DC220 90 ≤15
脱扣器与电磁铁的技术数据
名称 功率W/VA
分闸脱扣器 TQ
合闸电磁铁 HQ
闭锁电磁铁 Y1
间接式过流脱扣器 Y7~Y9
200
200
2.7
35~50
RMM1
断路器类
RMV1-4
RMW1 RMW2 RMM1L RMM2/RMM2L RMM3 RMC1 RMC2 RMV1 RMVS1
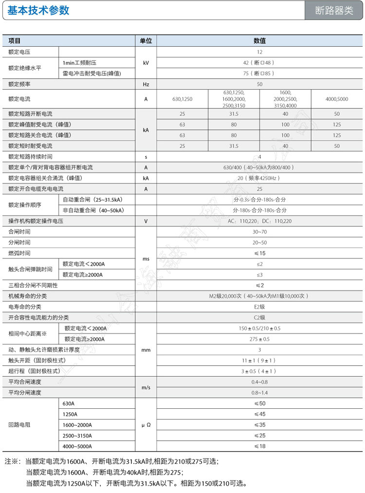
基本技术参数
项目 单位 数值
额定电压
kV
12
额定绝缘水平
1min工频耐压 42(断口48)
雷电冲击耐受电压(峰值) 75(断口85)
额定频率 Hz 50
额定电流 A 630,1250
630,1250,
1600,2000,
2500,3150
1600,
2000,2500,
3150,4000
4000,5000
额定短路开断电流
kA
25 31.5 40 50
额定峰值耐受电流(峰值) 63 80 100 125
额定短路关合电流(峰值) 63 80 100 125
额定短时耐受电流 25 31.5 40 50
额定短路持续时间 s 4
额定单个/背对背电容器组开断电流 A 630/400(40~50kA为800/400)
额定电容器组关合涌流(峰值) kA 20(频率4250Hz)
额定开合电缆充电电流 A 25
额定操作顺序
自动重合闸(25~31.5kA) 分-0.3s-合分-180s-合分
非自动重合闸(40~50kA) 分-180s-合分-180s-合分
操作机构额定操作电压 V AC:110,220;DC:110,220
合闸时间
ms
30~70
分闸时间 20~50
燃弧时间 ≤15
触头合闸弹跳时间
额定电流<2000A ≤2
额定电流≥2000A ≤3
三相合分闸不同期性 ≤2
机械寿命的分类 M2级20,000次(40~50kA为M1级10,000次)
电寿命的分类 E2级
开合容性电流能力的分类 C2级
相间中心距离※
额定电流<2000A
mm
150±0.5/210±0.5
额定电流≥2000A 275±0.5
动、静触头允许磨损累计厚度 3
触头开距(固封极柱式) 11±1(9±1)
C行程(固封极柱式) 3±0.5(4±1)
平均合闸速度
m/s
0.4~0.8
平均分闸速度 0.8~1.4
回路电阻
630A
μΩ
≤50
1250A ≤45
1600~2000A ≤35
2500~3150A ≤25
4000~5000A ≤18
注※:当额定电流为1600A、开断电流为31.5kA时,相距为210或275可选;
当额定电流为1600A、开断电流为40kA时,相距为275;
当额定电流为1250A以下,开断电流为31.5kA以下。相距为150或210可选。


















