◆概述
安全性好
■采用双列复合式触头、横接式机构、微电机预储能及微电子控制技术,基本实现零飞弧(无来弧罩)
■采用KK的机械联锁和电气联锁技术
■采用过零位技术(双分位)
■具有明显通断位置指示、挂锁功能,KK实现电源与负载间的隔离
KK性高,使用寿命8000次以上
■机电一体设计,开关转换准确、灵活、KK
电磁兼容好,抗干扰能力强,对外无干扰
自动化程度高
■全自动型不需外接不同控制元器件
外形美观、体积小、重量轻
由逻辑控制板,以不同的逻辑来管理直接装于开关内的电机、变速箱的运行操作来BZ开关的位置。
电机为聚氯丁橡胶绝缘湿热型电机装有安全装置,在C出110℃温度和过电流状态时跳闸。在故障消失后即自动投入工作,可逆减速齿轮采用直齿齿轮。
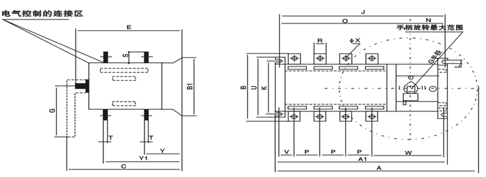
◆外形安装尺寸

◆主要技术指示
|
约定民热电源Ith |
20A |
40A |
63A |
80A |
|
额定绝缘电压U1 |
|
750V |
|
|
|
额定冲击耐受电压Uimp |
|
8KV |
|
|
|
额定工作电压Ue |
|
AC440V |
|
|
|
额定工作电流Ie |
20A |
40A |
63A |
80A |
|
负载性质 |
|
AC31A、AC35A、AC33A |
|
|
|
额定接通能力 |
|
10Ie |
|
|
|
额定分断能力 |
|
8Ie |
|
|
|
额定限制短路电流 |
|
100KA |
|
|
|
额定短时耐受电流IS |
|
7KA |
|
|
|
转换时间 |
|
0.45S |
|
|
|
控制电源电压 |
|
AC220V |
|
|
|
电机能耗 |
|
启动 300W、正常 55W |
|
|
|
重量(Kg) |
4.2 |
4.3 |
4.4 |
4.5 |
◆端子接线图(无双分)

注:HL1、HL2分别为常用电源、备用电源来电指示;HD1、HD2分别为常用电源、备用电源投入指示;FU1、FU2为2A保险丝;302~305为开关端子。
◆端子接线图(带双分)

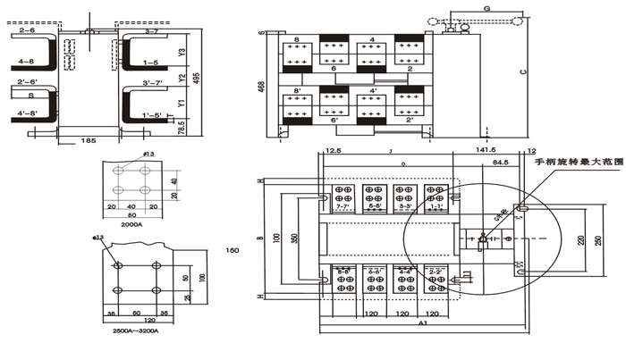
◆M-ATS2-100-1600A外形安装尺寸


◆M-ATS2-2000A-3200A外形安装尺寸


◆M-ATS2-100A-3200A端子接线图





◆消防控制信号
开关带有一对外接的常开触点为用户提供消防控制信号。当发生火灾时由消防控制中心给一控制信号进入智能控制,这时双电源本体进入分闸状态,切断负载端电源。消防信号未解除时,无论在“手动”或“自动”状态,自动转换开关的常用电源和备用电源执行开关均不能合闸。只有在消防控制信号解除后,开关自动转换为常用电源正常供电。
◆功能
◆控制功能:
三个状态位置“常”开关闭合,“备”开关断开;“备”开关闭合;“常”开关断开;两个开关全部断开为0位置。
多种操作方式:紧急手动操作,手动控制操作,自动控制操作。
开关由单片控制装置实现自动操作功能,控制主电路的控制电动机KK工作电压:上限为220×115%V,下限为220×75%V,频率50HZ+10%。
◆检测保护功能:
电源各项接线端子工作电压长高至额定工作电压的115%为过电压;电源各项接线端子工作电压降低至额定工作电压的75%为欠电压;电源任一相接线端子工作电压降低至额定工作电压的75%及以下为失压,即为不正常。常用电源与备用电源匀为市电供电系统,可确定一路电源为常用电源,当常用电源电路任一相失压时,开关经延时3秒,开始自动转换向备用电源电路,当常用电压电路恢复正常时,开关经延时节秒自动转换向常用电源电路;常用电源电路为市电,备用电源电路为油机的供电系统,当常用电源电路任一相失压或各相同时过、欠电压时,经延时节秒开关自动转换抽断开位置,同时控制装置即发出起动油机信号,起动完毕(即无故障)经暖机延时节秒,开关自动转换向油机备用电路。当油机备用电源电路正在供电,常用电源电路恢复正常时,经延时3秒,开关自动转换向常用电源电路。
当油机备用电源电路正在供电时,任一相失压或各相同时过、欠电压,且常用电源电路倘有恢复正常时,经延时3秒,开关自动转换向断开位置。
当开关正处于断开位置,只要常用电源电路恢复正常,并且经延时3秒,不论油机处于何种状态,开关则优先自动转换向常用电源电路。常用电源与备用电源同时有故障时,开关应自动转换至断开位置。
常用电源与备用电源三相同时失压或欠电压至220×75%及以下时,开关失效,处于原位置。
◆电脑通信功能:
本机与电脑联网后,可直接监测控制转换开关(订货时注明需此功能)。
◆功能注解:
自投自复(R)适用于电网与电网。当常用电源恢复正常后,经已设定(已调)的延时时间自动返回至常用电源供电。
自投不自复(S)适用于电网与电网。自投不自复的自动控制器对两对中电源(即常用电源和备用电源)进行自动切换。在任一电源出现异常(任一相电压发生过压、欠压或缺相)时,经已设定的延时自动切换至另一政党电源,但当异常电源恢复正常后,不能自动回复。
电网与油机(F)当用于电网与发电系统时,自控制器对电网和发电两路电源进行自动切换,在电网电压低于85%额定电压时,经发电延时指令发出发电指令(以一组常常闭触点输出)。当发电电压达到85%额定电压时,先从电网断开负载电路,再经延时接通发电电源。当电网恢复正常(达到85%额定电压以上)后,经智能控制器逻辑判断,自动将负载电路从发电电源断开,切换到电网供电.
◆消防脱扣器:
DC24V加入,立即切断两路电流。