|
二、主要技术参数
1.熔断器技术参数(见下列表)
|
|
规格
|
额定电流(A)
|
额定电压(V)
|
额定功率(W)
|
重量(kg)
|
|
NT00C
|
4
|
500
|
0.67
|
0.12
|
|
6
|
0.89
|
|
10
|
1.14
|
|
16
|
1.65
|
|
20
|
1.94
|
|
25
|
2.50
|
|
32
|
3.32
|
|
36
|
3.56
|
|
40
|
4.30
|
|
50
|
4.50
|
|
63
|
4.60
|
|
80
|
6.00
|
|
100
|
7.30
|
|
NT00
|
4
|
500
600
|
0.67
|
0.15
|
|
6
|
0.89
|
|
10
|
1.14
|
|
16
|
1.65
|
|
20
|
1.94
|
|
25
|
2.50
|
|
32
|
3.32
|
|
36
|
3.56
|
|
40
|
4.30
|
|
50
|
4.50
|
|
63
|
4.60
|
|
80
|
6.00
|
|
100
|
7.30
|
|
125
|
7.80
|
|
160
|
9.60
|
|
NT0
|
4
|
500
600
|
1.03
|
0.2
|
|
6
|
1.42
|
|
10
|
2.45
|
|
20
|
2.36
|
|
25
|
2.70
|
|
32
|
3.74
|
|
36
|
4.30
|
|
40
|
4.70
|
|
50
|
5.50
|
|
63
|
6.90
|
|
80
|
7.60
|
|
100
|
8.90
|
|
125
|
10.1
|
|
160
|
15.2
|
|
规格
|
额定电流(A)
|
额定电压(V)
|
额定功率(W)
|
重量(kg)
|
|
NT1
|
80
|
500
600
|
6.20
|
0.36
|
|
100
|
7.50
|
|
125
|
10.2
|
|
160
|
13.0
|
|
200
|
15.2
|
|
224
|
16.8
|
|
250
|
18.3
|
|
|
125
|
500
660
500
660
|
9.00
|
0.65
0.85
|
|
|
160
|
11.5
|
|
|
200
|
15.0
|
|
|
224
|
16.0
|
|
|
250
|
18.4
|
|
|
300
|
21.0
|
|
|
315
|
19.2
|
|
|
355
|
24.5
|
|
|
400
|
26.0
|
|
|
315
|
380
|
21.7
|
1.95
|
|
|
355
|
22.7
|
|
|
400
|
26.8
|
|
|
425
|
28.9
|
|
|
500
|
32.0
|
|
|
630
|
40.3
|
|
|
800
|
|
62.0
|
|
|
|
1000
|
75.0
|
|
|
| 外形及安装尺寸 |
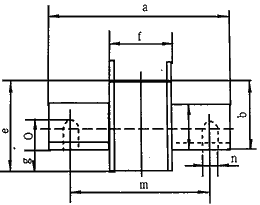
1.熔断体尺寸图(表4、图1) |
|
表4
|
|
尺寸
|
NC00
|
NT0
|
NT1
|
NT2
|
NT3
|
NT4
|
|
a
|
30
|
30
|
58
|
64
|
64
|
96
|
|
b
|
120
|
170
|
200
|
225
|
250
|
304
|
|
c1
|
60
|
73
|
82
|
98
|
105
|
145
|
|
c2
|
85
|
93
|
96
|
112
|
120
|
165
|
|
d
|
0
|
0
|
30
|
30
|
30
|
45
|
|
e
|
25
|
25
|
25
|
25
|
25
|
30
|
|
g1
|
8
|
16
|
15
|
17
|
17
|
4
|
|
g2
|
7.5
|
7.5
|
10.5
|
10.5
|
10.5
|
13
|
|
i
|
100
|
150
|
175
|
200
|
210
|
260
|
|
m
|
25
|
38
|
38
|
40
|
10.5
|
47.5
|
|
s
|
M8
|
M8
|
M10
|
M10
|
M12
|
M16
|
|
u
|
25
|
25
|
25
|
30
|
40
|
45
|
|
v
|
2
|
3
|
3
|
5
|
5.5
|
8.5
|
|
图1 |
|
|
右视图 |
|
|
图2 |
|
|
 |
|